Recenze spokojených zákazníků:
Ověřený zákazník


Precizně vyrobený monokrystalický solární panel s výkonem 465 Wp a účinností až 21,27 %. Panel je vhodný nejen ve spojení s mikroměniči pro systémy GridFree, ale i pro větší instalace. Černý rám s černým podkladem vypadá na každé střeše opravdu skvěle.
Kvalitně zpracovaný solární panel s garancí výkonu od výrobce
30 let. Více informací naleznete níže v souvisejících
dokumentech.
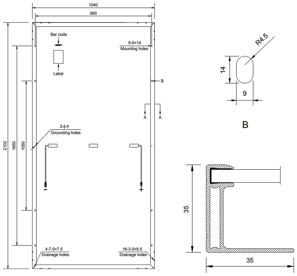
Vysoce efektivní monokrystalické panely v rozměru 2102 x 1040 x
35 mm za příznivou cenu pro rychlou návratnost investice. Navíc
všechny dodávané panely mají pozitivní toleranci nominálního
výkonu.
Technologie PERC (Passivated Emitter and Rear Cell)
Solární články typu PERC mají pasivovanou zadní stranu článku,
která je schopna absorbovat světlo, které lze použít k výrobě
elektřiny. Tato technologie právě umožňuje dosáhnout vysoké
konverzní účinnosti. Díky tomu panely dosahují lepšího poměru
výkon/plocha a špičkového výkonu v provozních podmínkách.

Tyto panely mají 144 článků sestavených do dvou polí v pevném
hliníkovém rámu. Je vybaven speciálním mechanicky odolným tvrzeným
sklem (3,2 mm) s vysokou schopností průchodu světelného záření.
Voděodolný výstup má integrované bypass diody pro ochranu před
zpětným proudem a je vysoce odolný proti extrémním projevům počasí
jako jsou vysoké a nízké teploty, námraza, silný déšť nebo
vítr.
Součástí panelu jsou i připojovací boxy s kabely a konektory MC4.
Pro domluvu VELKOOBCHODNÍCH cen pro větší odběry (10 kWp, 30 kWp a i více) nás prosím kontaktujte. Rádi Vám vyjdeme vstříc.
Panely máme obvykle skladem v Praze s rychlým dodáním v rámci ČR a SR do dvou dnů.
ZÁKLADNÍ SPECIFIKACE
Typ panelu: monokrystalický
Počet článků: 144 [2 x (12 x 6)]
Max. výkon (Pmax): 465 W
Jmenovité napětí (Vmp): 42,4 V
Jmenovitý proud (Imp): 10,97 A
Rozměry: 2102 x 1040 x 35 mm
Barva: černá